物件紹介
コンフォリア・リヴ東中野
利便性の高いロケーション
落ち着きのある住宅街
自然や歴史に触れられるスポットも点在
こちらの物件のイチオシPointをご案内させていただきます、コンシェルジュでございます。
ご質問は、お問い合わせフォームやLINEからお気軽にお寄せください。
この物件のイチオシPoint!
2線2駅が利用可能、中野区立上高田2丁目公園まで徒歩約6分の緑に親しむ環境
「コンフォリア・リヴ東中野」は、東京メトロ東西線「落合」駅から徒歩9分に位置する高級賃貸マンションでございます。
都営大江戸線「東中野」駅まで徒歩9分と、2線2駅が利用可能な交通アクセスの良い立地が魅力となっております。


中野区立上高田2丁目公園は、広々とした芝生広場もあり、地域の人々が散歩やピクニックを楽しむ姿が見られます。季節ごとに地域のイベントが開催されることもあり、地域コミュニティの交流の場としても利用されています。華やかさと落ち着き、その両方を享受できる、贅沢な立地と言えます。

近隣には飲食店やコンビニなどの店舗もあり、生活便利な立地でもあります。

都心の上質な暮らしを叶える「コンフォリア・リヴ東中野」
「コンフォリア・リヴ東中野」は、タイリッシュで上質な都市型レジデンスでございます。新宿へ1駅という抜群のアクセス性を誇りながらも、周辺は落ち着きのある住宅街が広がり、都心の喧騒を忘れさせる穏やかな住環境を実現しております。
周辺にはスーパーなどの買い物施設、コンビニ、ドラッグストアが徒歩圏内に揃い、日常の買い物にも困りません。駅周辺にはカフェや飲食店も点在しており、休日の外食やテイクアウトも気軽に楽しめます。さらに、神田川沿いの遊歩道や「氷川神社」など、自然や歴史に触れられるスポットも近く、穏やかな日常を感じられるロケーションとなっております。

宅配ボックスや駐輪場など共用施設・セキュリティ対策
「コンフォリア・リヴ東中野」では、メール・宅配ボックスや駐輪場、エレベーター、敷地内ゴミ置き場などの共用施設がございます。
敷地内ゴミ置き場は24時間ゴミ出し可能など、生活の快適さを向上させてくれる共用サービスも充実しております。オートロックや防犯カメラの設置により、不審者の侵入を未然に防ぎ、安心感を高めます。また、内廊下設計や住戸玄関のセキュリティも強化されており、外部からの視線や接触の心配が少ない構造です。




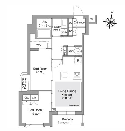
ウォークインクローゼットもある充実の収納
今回ご紹介致しますお部屋は、収納が大変充実している点が注目いただきたいポイントでございます。
ウォークインクローゼットがあることで、衣類や趣味のアイテムもたっぷり収納でき、家具を置くスペースに余裕が生まれます。室内は広く開放的に使え、清潔感あふれる居心地の良い空間を実現できます。

玄関のシューズクローゼットの容量もたっぷり。
必要なものを必要な場所に格納できるよう工夫されている点も、暮らしの快適さを向上させてくれます。

リビングの空間を広げられるフレキシブルな間取設計
こちらのお部屋は、リビングと隣接している居室が引き戸で隔てられており、引き戸をフルオープンすることで、リビングと居室の空間を繋げることができます。
多様なライフスタイルに対応可能な、フレキシブルな設計も、住まいとしての魅力のひとつです。
対面キッチンはオープンな空間は光や風が広がり、明るく開放的なリビングを実現。友人や家族を招いたときにも、料理をしながら会話を楽しめるため、自然とコミュニケーションが生まれる空間となります。






来客人数が多い際など、リビングの空間を広く使いたい場合、あるいは居室を多くして書斎など様々な用途で使いたい場合など、ライフスタイルに合わせた間取にできるという点は、大きな魅力です。


陽光に包まれる心満たされる暮らし
今回ご紹介するお部屋は、低層に位置するお部屋でございます。
陽当りも良く、また風通しも良い住まいとなっております。


南向きのバルコニーは、一日を通してたっぷりと自然光が降り注ぎ、室内を明るく心地よい空間へと導いてくれます。朝のやわらかな光で一日を始め、午後には温かな陽だまりがリビングを包み、冬でもぽかぽかとしたぬくもりを感じられます。洗濯物も乾きやすく、植物も元気に育つため、日々の暮らしに「光」と「快適さ」をもたらしてくれる特別な方角です。
日々を心地よく彩り快適な暮らしを実現する確かなクオリティ
追い焚き・浴室乾燥機や温水洗浄便座、独立洗面台、3口ガスコンロシステムキッチン、食洗器、浄水器など、快適な暮らしをサポートする設備が豊富です。





食器洗浄乾燥機が備え付けられていることで、日々の家事負担を大幅に軽減できます。手洗いに比べて使用する水の量が少なく、節水・節約効果も期待できます。また、高温洗浄により衛生面でも安心で、手では落としにくい油汚れや菌をしっかり除去。忙しい朝や夜でもボタンひとつで洗浄から乾燥まで完了するため、時間を有効に使うことができ、家族との時間や自分のリラックスタイムを増やすことができます。
家で過ごす時間をより幸せにしてくれる住まいです。
最後までご覧いただき、誠にありがとうございます。
こちらの物件につきまして、もっとお知りになりたい点などございましたら、お気軽にご質問ください。
メールやLINE、お電話にて受け付けております。
また、空室情報に関しても、下のメールフォームからお問い合わせいただけます。
最終更新日:
空室情報のお問い合わせ
お電話やLINE、メールフォームで空室情報をお問い合わせいただけます。

